Was in unserer Gemeinde passiert
23. April 2026
Kommunale Wärmeplanung
Die kommunale Wärmeplanung ist seit dem 1. Januar 2024 durch das Wärmeplanungsgesetz (WPG) für alle Kommunen in Deutschland verpflichtend. Ziel ist eine klimaneutrale Wärmeversorgung bis 2045. Kommunen müssen bis 30. Juni 2026 (über 100.000 Einwohner) bzw. 30. Juni 2028 (unter 100.000) Pläne für den Ausbau von Wärmenetzen vorlegen. Die Planung umfasst eine Bestandsanalyse (Wärmebedarf), eine Potenzialanalyse (erneuerbare Energien) und eine Zielszenario-Entwicklung für das Stadtgebiet. Ziel ist das Aufzeigen, wo Fernwärme oder Nahwärmenetze entstehen sollen und wo eher Einzelheizungen (z.B. Wärmepumpen) sinnvoll sind.
Auf der Sitzung der Gemeindevertretung stellte die Firma AR Climate Positive aus Regensburg den finalen Wärmeplan für die Gemeinde vor. Im Mittelpunkt standen die Fragen, ab wann Maßnahmen in der Gemeinde umzusetzen sind, wie sich die Ausformung der Fernwärme (Netze) gestaltet und wie sich die privaten Haushalte zu verhalten haben. Demnach sind in den öffentlichen Nutzungen bis 2029 10 Prozent Bioenergien beizumischen, bis 2040 habe die Nutzung vollkommen auf Basis regenerativer Energien zu erfolgen. Die Nutzung bzw. der Ausbau der Netze ist nur in der zentralen Lage des Ortes möglich, am Ortsrand nicht. Der Anteil Wärmepumpen soll bis 2040 auf ca.65 Prozent steigen. Die Aufgabe der Gemeinde ist weiterhin, umfangreichen Informationen für die privaten Haushalte zur Verfügung zu stellen. Vorgaben oder Verpflichtungen für diese gibt es nicht.
Details siehe Kommunale Wärmeplanung / Amt Hohe Elbgeest. Dort finden sich auch die Links zu den Ergebnissen.
5. April 2026
Bahnanbindung tot?
Ist die Bahnanbindung Geesthacht-Hamburg tot? Jedenfalls unterschreibt Hamburg die Ländervereinbarung zur Planung nicht. Hamburg präferiert Projekte bei der U- und S-Bahn.
7. März 2026
Sauberes Börnsen
Bei herrlichem Sonnenschein und angenehmen Temperaturen schwärmten die Teilnehmenden des „Börnsener Frühjahrsputzes“ mit ihren Müllsäcken, Eimern und Zangen motiviert aus, um Feldränder, Knicks und Grünflächen von achtlos entsorgtem Müll zu befreien.
Die Aktion am Sonnabend, 7.März, wurde vom Ortsverband der GRÜNEN angestoßen und organisiert. Die Jugendfeuerwehr Börnsen, der BUND, der ADFC und viele Bürger*innen jeden Alters haben uns unterstützt und sich tatkräftig beteiligt. Dafür ein ganz herzliches Dankeschön! Anschließend trafen sich alle Sammler und Sammlerinnen am Kuchen- und Getränkebuffet. Man hatte sich viel zu erzählen. .

Februar 2026
Ortsentwicklungskonzept (OEK)
Nach dem Rundgang zum Ortsentwicklungskonzept und anschließendem WorkShop werden weiter Aktivitäten in den Gremien unternommen. Informationen und zugehörige Webseite (Willkommen / Ortsentwicklungskonzept der Gemeinde Börnsen) im Flyer. Link:
30. Juni 2025
Haustierscanner
Leider werden auch in Börnsen immer wieder Hauskatzen totgefahren. Erhalten die Gemeindemitarbeiter eine Information, holen sie die Tiere zum Bauhof. Damit zukünftig die Besitzer gechipter Tiere ermittelt werden können, wurde durch die Gemeinde ein Haustierchipscanner angeschafft.
So ist zumindest gewährleistet, dass die Besitzer sich angemessen verabschieden können und Gewißheit über das Schicksal ihrer Tiere haben.

2. Juli 2025
Fahrradgruppen für Schulkinder
Mit 50 Teilnehmer*innen (39 Schulkinder, 11 Erwachsene) war der erste BiciBus in Börnsen ein riesengroßer Erfolg. Was versteht man darunter? Der Begriff kommt aus dem Spanischen und bedeutet Fahrradbus. Und das bedeutet wiederum, dass eine Gruppe von Menschen ab 16 Teilnehmenden – in diesem Fall Schulkinder – in einem geschlossenen Verband eine festgelegte Strecke auf dem Rad zurücklegen.

Der Vorstand des Schulelternbeirats der Dalbekschule hat die Organisation übernommen. Der ADFC Börnsen/Wentorf hat den BiciBus begleitet und allen Teilnehmenden die grundlegenden Regeln für eine Fahrradkolonne mit Kindern erklärt.
Die Tour sollte von Neu-Börnsen zur Schule führen. Der Start erfolgte an der Kita Flohzirkus, die zweite Haltstelle war bei Fisch Baier, die dritte Einfahrt Fleederbogen und die vierte die Feuerwehr. Die Schulkinder der Dalbekschule fanden es aufregend und spannend. Die Passage durch die Baustelle war das Highlight, da hier die Schulkinder nun endlich einmal Vorrang hatten. Sie durften als Kolonne über die Baustellenampel fahren.
Die Schulleiterin und der Schulsozialarbeiter empfingen uns auf dem Schulhof und lobten diese tolle Aktion und die vielen Eltern, die als Helfer mitgefahren waren.
Der Bicibus fährt weiterhin jeden Freitag bis zu den Sommerferien zur Dalbek-Schule. In Begleitung von Erwachsenen radeln Schulkinder im Verband morgens zur Schule. Diesem „Bus“ können sich noch weitere Schüler und Schülerinnen anschließen.
Einen ausführlichen Bericht darüber lesen Sie weiter unten.
Allen Organisator*innen danken wir an dieser Stelle ganz herzlich für ihr Engagement.

15. Juni bis 5. Juli 2025
Stadtradeln in Börnsen
Es ist wieder soweit – das STADTRADELN im Kreis Herzogtum Lauenburg
geht in die nächste Runde, und wir wollen als Gemeinde Börnsen zeigen, dass Nachhaltigkeit, Teamgeist und Bewegung für uns nicht nur Schlagworte sind!
Nach dem im letzten Jahr Hamwarde den Titel geholt hat. Holen wir dieses Jahr wieder den Titel.
Wir gemeinsam!
Zeitraum: 06. bis 05.07.2025
Team: Börnsen mit diversen Unterteams
Ziel: Unsere Leistung vom letzten Jahr übertreffen – wir gemeinsam!
Warum mitmachen?
– Aktiver Beitrag zum Klimaschutz
– Gesundheitsförderung
– Dorfzusammenhalt stärken
– Chance auf kleine interne Preise & Auszeichnungen!
So geht’s:
1. Registriert euch auf https://www.stadtradeln.de/amt-hohe-elbgeest
2. Tretet unserem Dorfteam „Börnsen“ bei
3. Radelt mit – privat oder dienstlich
4. Tragt eure Kilometer ein (per App oder Online)
Lasst uns gemeinsam zeigen, wie viel Energie in unserem Team steckt – im wahrsten Sinne des Wortes!
Wir freuen uns auf viele Teilnehmende und eine starke Teamleistung!
Juni 2025
Umbau am Bahnhof fertiggestellt
Das Projekt „Nördlich der Bahn“ umfasst die Neugestaltung des Geländes westlich des alten Börnsener Bahnhofs. Der Umbau wurde jetzt fertiggestellt.
Auf dem beschriebenen Gebiet ist ein Naturpfad entstanden. Die bereits vorhandene Struktur wie Baumbestand, Hänge und Kopfsteinpflaster sind bestehen geblieben und in das Vorhaben integriert worden. Das Anlegen einer Streuobstwiese mit alten Obstbaumsorten sowie von Wildblumenwiesen als Angebot für Bienen gehört ebenfalls dazu.
Das Projekt wurde von uns Grünen 2021 initiiert und aufgrund einer Ausschreibung des Bundes zunächst in unsere Börnsener Gremien eingebracht und bei der Bundesregierung als Fördermaßnahme eingebracht. Der Haushaltsausschuss des Deutschen Bundestages hat in seiner Sitzung am 9. Juni 2021 die Aufnahme mit dem Titel „Umgestaltung und Renaturierung einer Fläche nördlich der Bahnlinie“ in das Bundesprogramm beschlossen. Für das Projekt wurde eine Fördersumme von knapp 90.000 Euro bereitgestellt. Darüber haben wir uns sehr gefreut.
Auf dem Gelände sind 12 Parkplätze entstanden. Das alte Kopfsteinpflaster ist erhalten geblieben. Ursprünglich sollten die Steine, die mit dem Umbau der Bushaltestelle anfielen, hier ergänzend verlegt werden. Nun endet der Naturpfad in einem Glensanda-Weg.


15. Mai 2025
Glasfaserausbau
Der Glasfaser-Ausbau in Börnsen steht kurz vor dem Abschluss. Das Problem, unter der Bahnlinie hindurch zu können/dürfen, ist mit heutiger Baubegehung gelöst.
Ganz zum Schluss sollen die in manchen Straßen doch ziemlich in Mitleidenschaft geratenen Grünstreifen am Straßenrand geglättet und mit Rasensaat versehen werden, damit alles wieder hübsch wird. Mitte bis Ende Juni können dann die hausinternen Anschlüsse hergestellt werden.
Der Trupp der Hoch- und Tiefbau-Arbeiter hat letztendlich zuverlässig und sorgsam gearbeitet und zeigte sich entgegenkommend bei Verbesserungswünschen der Anwohner und Anwohnerinnen.

In einem Bericht der Bergedorfer Zeitung äußert sich Bauamtsleiter Marco Haralambous zur voraussichtlichen Dauer der Sperrung des Hamfelderedders am Baugebiet gegenüber der Schule. Er geht von einer Fertigstellung nicht vor Ende Mai aus.
23. Februar 2025
Wahlergebnis Bundestagswahl 2025 für Börnsen

20. Februar 2025
Börnsen hat eine neue Bürgermeisterin

Monique Hoops (SPD) war von Juni 2023 bis heute Bürgermeisterin in Börnsen. Nach nur 19 Monaten hat sie ihr Amt nach eigenen Angaben auf Grund beruflicher und familiärer Belastungen aufgegeben. Als Nachfolgerin hat die Gemeindevertretung einstimmig Katharina Münnich (SPD) gewählt. In ihrer kurzen Begrüßungsrede betonte Frau Münnich, dass sie auf eine gute und konstruktive Zusammenarbeit in den Gremien hoffe. Wir beabsichtigen, die neue Amtsinhaberin in Kürze hier persönlich vorstellen zu können. Das Foto zeigt den stellv. Bürgermeister Alfred Drenguis (Grüne) bei der Übergabe der Ernennungsurkunde.
Zunächst wird einseitig mit Ampelbetrieb zur Herstellung der Bushaltestellen gesperrt. Außerdem wird die Deckschicht des Asphalts abgefräst. Für die anderen Bauarbeiten wird jede Teilstrecke für zwei Tage voll gesperrt. Der Geh- und Fahrradweg wird erneuert. Zum Schluss wird die Asphaltierung des gesamten Straßenbereiches in einem Zug unter Vollsperrung hergestellt. Die Baumaßnahme wird im Laufe dieses Jahres durchgeführt.
16. Januar 2025
Glasfaserausbau in Börnsen
Die Stadtwerke Geesthacht planen, auch die restlichen Gebiete des Dorfen ans Glasfasernetz anzuschließen. Hierzu ist seitens der Stadtwerke Geesthacht eine erhebliche Investition erforderlich um die Haushalte anzuschließen. Auch die Haushalte, die im Erschließungsgebiet nicht angeschlossen werden wollen, erhalten im Kabelstrang einen nicht aktiven Zugang. Dadurch ist ein späterer Anschluss noch möglich – aber dann zu den aktuellen Anschlusskosten.
Es ist der Ausbau folgender Gebiete geplant:
- Zum Alten Elbufer
- Hellholz-Gebiet
- Rothehausweg
- Gebiet Koppelweg, Koppelring, Horster Weg, Heuweg
- Rudolf-Donath-Weg
- Dänenweg
- Gebiet Waldkamp, Feldkamp
- Sodbarg
- Gebiet Buchenberg, Diestelbarg
- Neuer Weg
Die Herstellung des Netzes geschieht nicht in offener Bauweise sondern durch kostengünstige unterirdische Schussbauweise. Die Bundesregierung plant, ab 2030 in den Gebieten, wo ein Glasfasernetz installiert ist, das Kupfernetz abzustellen htttps://www.bundesnetzagentur.de/SharedDocs/Pressemitteilungen/DE/2024/20241119_Gigabit.html
Die Baumaßnahme soll im Q1 2025 beginnen.
24. Oktober 2024
Ein Buswartehaus neben der Dalbek-Apotheke wird aufgebaut

Nutzer des öffentlichen Nahverkehrs haben hier demnächst die Möglichkeit sich unterzustellen.
23. Oktobinter musste an der Bücherei ein großer, alter Apfelbaum gefällt werden. Jetzt wurden drei neue Obstbäume nachgepflanzt.
1 x Wohlschmecker aus Vierlanden
1 x Altländer Pfannkuchenapfel
1 x Portugiesische Birnenquitte
Es handelt sich bei den Nachpflanzungen um Halbstämme alte erhaltenswerter Sorten aus unserer Region.
11. Oktober 2024
Neue Trafo-Station am Hamfelderedder

Vor ein paar Tagen wurde eine neue Trafo-Station zur Versorgung des Wohngebietes im B-Plan 24 aufgebaut. Der Standort wurde so gewählt, damit ein späterer Bau einer Sporthalle nur wenig beeinflusst wird. Es ist geplant, die Station mit Motiven aus der Dalbek-Schlucht zu verzieren.
03. Oktober 2024
Asphaltierungsarbeiten – Sperrung aufgehoben

Die Arbeiten an den Bushaltestellen gegenüber der Sparkasse sind beendet. Die Ampel in Kröppelshagen wurde inzwischen abgebaut. Restarbeiten müssen noch erledigt werden.
Schulbeginn aufgehoben.
22. Juli 2024
Müllentsorgung

Einige Bürger empfinden die Abgeschiedenheit von Feldwegen offenbar als Aufforderung ihren Müll zu entsorgen. Dadurch entstehen unserer Gemeinde jedes Jahr erhebliche monetäre Aufwände. Einerseits für die Ermittlung der Verursacher und andererseits für die vollständige und fachgerechte Entsorgung der Hinterlassenschaften.
24. Juni 2024
Freifläche neben der Dalbek-Apotheke

In der Bauausschusssitzung vom 24.06.2024 wurde bekanntgegeben, dass auf der Fläche zwischen der Dalbek-Apotheke und der Fish Butchery Baier ein Abstellplatz für Busse entstehen wird.
22. Juni 2024
Umbau der Bushaltestellen an der K80

Die Arbeiten an der ersten Bushaltestelle sind nahezu abgeschlossen.
03. Juni 2024
Straßengraben am Fleederkampredder

Der Straßengraben am Fleederkampredder wird ausgehoben und der Aushub abgefahren. Nach dieser Aktion sollte das nicht abfließende Oberflächenwasser und die regelmäßige Überschwemmung der Straße behoben sein.
23. Mai 2024
Sturmschaden am Koppelring

Am Spielplatz Koppelring wurde der Sturmschaden behoben und nun kann der Spielplatz wieder genutzt werden. Die beschädigte Rutsche wurde entfernt, da eine Reparatur der Rutsche nicht möglich war.
16. Mai 2024
Sturmschaden am Koppelring

Die vom Deutschen Wetterdienst für den 16.Mai 2024 angekündigten Sturmböen der Stufe 2 bis 4 haben in Börnsen am Spielplatz Koppelring ihre Spuren hinterlassen. Ein Stamm einer Doppelstamm Pyramidenpappel brach und stürzte auf den Spielplatz. Der den Spielplatz umgebende Zaun und eine Rutsche wurden dabei beschädigt.
27. April 2024
Börnsener Frühlingsfest

Bei schönstem Frühlingswetter war der festliche Nachmittag an der Waldschule ein voller Erfolg. Zahlreiche Besucher, ganz besonders die vielen Eltern mit ihren Kindern, brachten Leben in die grünende Umgebung. Ob Hüpfburg, Pflanzenbörse, Unverpackt-Stand, „Eine-Welt“, Imkerin, Fahrrad-Infostand (ADFC), Malaktion oder Wald-Bingo: Unsere Gäste waren von den vielen Angeboten zum Mitmachen beeindruckt.
22. April 2024
Umbau der Bushaltestellen und Vollsperrung der K80

Die Arbeiten an den Bushaltestellen im Bereich K80/Bahnstraße wurden begonnen. Die Sperrung und die dafür erforderliche Umleitung sind eingerichtet.
Weitere Informationen unter www.kreis-rz.de
21. April 2024
Deutschlandticket für Senioren

Der Kampf gegen Altersarmut und Vereinsamung von Senioren wird auch die kommenden Jahre ein wichtiges Thema sein. Wir als Grüne in Börnsen möchten Senioren helfen, die von Altersarmut bedroht sind. Deshalb unterstützen wir die Initiative des Seniorenbeirat Norderstedt für ein faires Deutschlandticket für Senioren.
Weitere Informationen unter www.lsr-sh.de und direkt bei Herrn Gerhard Mint (Mitglied des Landesseniorenrats Schleswig-Holstein)
03. April 2024
Umbau der Bushaltestellen und Vollsperrung der K80

In der Ausgabe der Bergedorfer Zeitung vom 03.04.2024 wird der Umbau der Bushaltestellen an der K80/Bahnstraße und die damit verbundene Vollsperrung der K80 für drei Monate angekündigt. Die Sperrung der K80 soll aller Voraussicht nach am 22.04.2024 beginnen. Die Kreuzung K80/Bahnstraße wird dann nur noch aus Richtung Geesthacht kommend erreichbar sein.
21. März 2024
Mitgliederversammlung des OV Bündnis 90 / Die Grünen
Die Mitglieder des Ortsverbands ‚Bündnis 90/die Grünen‘ haben sich in gemütlicher Atmosphäre in der Waldschule getroffen. Zwischen den politisch aktiven und den Mitgliedern der Partei fand ein reger Gedankenaustausch statt. Bei Getränken und kleinen Speisen wurde über Politik und alles was uns in Börnsen bewegt gesprochen.
13. März 2024
Verkehrssicherung an der Dalbek

Der die Dalbek umgebende Wald grenzt im nördlichen Bereich u.a. an den Buchenberg an. Dort werden aus Gründen der Verkehrssicherung abgestorbene und nahezu abgestorbene Bäume gefällt. Die Arbeiten werden zeitnah abgeschlossen sein.
06. März 2024
Aldi Neubau

Das Aldi Gebäude ist fast vollständig abgetragen. Unser ehemaliger Bürgermeister Klaus Tormählen (Bündnis90/DieGrünen) hat die 2. Änderung des B-Plan 19 seinerzeit erlassen und damit den Neubau möglich gemacht.
Als Ausblick und Vorgeschmack auf den zu erwartenden Aldi Markt, möchten wir auf eine geplante Photovoltaikanlage, eine Dachbegrünung, eine Wärmeversorgung des Marktes aus eigener Abwärme, eine LED Beleuchtung im Markt, eine Oberflächenwasserversickerung und weitere Laubbaumanpflanzungen auf dem Gelände verweisen.
29. Februar 2024
Vereidigung des neuen/alten Gemeindewehrführers Bernd Kreutner

Gemeindewehrführer Bernd Kreutner.
22. Februar 2024
Neuer Straßenbelag der Börnsener Straße

Die noch fehlende Fahrbahnmarkierung wurde aufgebracht. Somit sind die Restarbeiten im Bereich der Börnsener Straße zwischen der ehemaligen B5 und Hamfelderedder abgeschlossen.
09. Februar 2024
Knickpflege

Am Fleederkampredder kann Knickpflege beobachtet werden. Spätestens zum 29.02. hin werden die Arbeiten am Knick abgeschlossen sein.
Im Bereich der Straße Zwischen den Kreiseln, genauer auf der Freifläche zwischen der Dalbek-Apotheke und Fischfeinkost Baier gibt es Erdbauaktivitäten.
19. Januar 2024
Jahreshauptversammlung der freiwilligen Jugendfeuerwehr Börnsen
Michelle Lettwitz wurde von den fast vollzählig angetretenen Jugendlichen der Jugendfeuerwehr Börnsen zu ihrer neuen Jugendgruppenleiterin gewählt. Auch weitere Posten der Jugendfeuerwehr wurden neu besetzt, so dass die Jugendfeuerwehr für das kommende Jahr gut aufgestellt ist.
18. Januar 2024
Abschied von Joachim Schreiber
In der Heilige-Kreuz-Kirche zu Börnsen haben wir von Joachim Schreiber Abschied genommen. Bekannt wurde Jochen durch seine Tätigkeit im Vorstand des Bürgervereins Börnsen, dem Vorstand des DRK Börnsen und aus vielen weiteren ehrenamtlichen Tätigkeiten.
12. Januar 2024
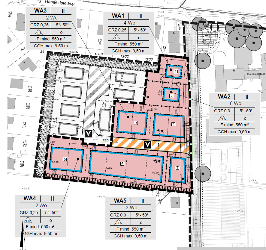
Bauplanung an der Schule, 1. Änderung B-Plan 24,
Beschluss in der GV vom 13.12.2023 durch Zustimmung von 7 (max. 17) Gemeindevertretern
Der B-Plan 24 wurde per Beschluss vom 02.03.2021 in Kraft gesetzt und hätte aus dem ehemaligen Grandplatz ein Baugebiet gemacht, dass sich in die nahe Umgebung harmonisch eingefügt hätte.
Der B-Plan 24 sollte dieses Gebiet für Familien und Wohnungssuchende attraktiv gestalten, den Bereich lebenswert erhalten, und sich an die angrenzende, überwiegend aus Ein- und Zweifamilienhäusern bestehende dörfliche Bebauung mit Satteldächern, einfügen.
Der ursprüngliche B-Plan 24:

Direkt im Anschluss an die letzte Kommunalwahl wurde von der neuen Gemeindevertretermehrheit ein Änderungsprozess für den B-Plan 24 gestartet, der eine Vielzahl an Sitzungen und zusätzliche Planungskosten verursacht hat. Als Begründung für die Änderungen wurde eine „bessere Vermarktbarkeit“ der Bauflächen genannt.
Der geänderte B-Plan 24:

Im direkten Vergleich des Ursprungsplanes zum geänderten Plan ist zu erkennen, dass der geänderte B-Plan 24 die Möglichkeit bietet, eine geschlossene Bebauung mit sogenannten Wohnriegeln herzustellen.
Auch wurde über den neu eingeführten 5°-Winkel für die Dachneigung die Dachform Flachdach hinzugenommen. Die Begrenzung der Traufhöhe wurde entfernt und somit wurden auch Gebäude mit zwei Voll- und Staffelgeschoss ermöglicht. Auch wurde die Anzahl an möglichen Wohneinheiten für die Flächen WA2 und WA5 erhöht.
Der 1. Änderung des B-Plans 24 haben wir nicht zugestimmt, weil wir einen dörflichen Charakter im Planungsgebiet erhalten wollen.
19. Dezember 2023
Baumfällung an der Schule
Stellungnahme aus dem Rathaus zur Fällung der Bäume am Eingang zum Schulhof Hamfelderedder: Die Fällung gehört zur Baufeldräumung für den B Plan 24. Die Pflanzinsel wird umgesetzt.
6. Dezember 2023
OV neu gewählt
Auf seiner Jahresversammlung hat der Ortsverband der Grünen einen neuen Vorstand gewählt: Rolf Braun (Vorsitzender), Wolfgang Pirsich (Stellvertreter und Kassenwart), Christine Adebahr, Leonie Müller und Ute Vierdt-Ziegelitz (alle Beisitzerinnen).

Christine Adebahr, Wolfgang Pirsich, Rolf Braun (Vorsitzender), Ute Vierdt-Ziegelitz, Leonie Müller
1. Juli 2023
Börnsen siegt beim Stadtradeln
Gratulation: Team Börnsen belegt den 1. Platz!

Beim Stadtradeln, oder genauer gesagt beim „Dorfradeln“, hat das Team Börnsen in der Zeit vom 4. bis 24. Juni 2023 mit 6.754 geradelten Kilometern 1.094,1 kg CO2 vermieden.
Dem Aufruf, an der Radel-Aktion des Klima-Bündnisses und des Amtes Hohe Elbgeest diesmal als Team Börnsen teilzunehmen, sind viele Börnsener*innen gefolgt und haben sich registrieren lassen. Initiatorin und Teamchefin war Birte Drenguis. Wir danken ihr für ihr Engagement, das gleich mit der Auszeichnung in Gold gewürdigt wurde.
Dankbar sind wir auch unserem Teilnehmer Fabian R., der just zu dieser Zeit auf einer europaweiten Fahrradtour war und in den betreffenden drei Aktionswochen mit seinen knapp 3000 gefahrenen Kilometern maßgeblich zu diesem Erfolg beigetragen hat.

Auch im nächsten Jahr wollen wir wieder dabei sein und die Werbetrommel noch stärker rühren. In der kleinen Feierrunde der siegreichen Gemeinden am 27. Juli im Amtsgebäude wurde auch darüber gesprochen, wie man das Anmeldeverfahren sowie die „Kilometerzählerei“, vereinfachen könne, damit diese nicht als Hürde empfunden werden.
Ziel des Stadtradelns ist es natürlich, mehr Menschen auf das Fahrrad zu bringen und das Auto öfter stehen zu lassen, sei es im Freizeitbereich oder auf dem Weg von und zur Arbeit. Dazu muss politisch weiter an den guten Bedingungen gearbeitet werden. Denn viele Gemeinden, so auch Börnsen, haben keine expliziten Fahrradwege, sondern nur Fußwege (und das muss betont werden!), die als Fahrradwege mit genutzt werden dürfen. Grundsätzlich darf jeder (der angstfrei ist!) mit dem Fahrrad auf der Fahrbahn fahren.

21. Juni 2023
Die Grünen-Fraktion steht!
Auf unserer konstituierenden Fraktionssitzung am 14. Juni wurde unsere Grünen-Mannschaft für die nächste Wahlperiode bestätigt.
Fraktionsvorsitzender ist Alfred Drenguis, sein Stellvertreter ist Martin Andreas Pfeiffer.
In den Gemeinderat ziehen ein:
Alfred Drenguis, Birte Drenguis, Sandra Flöhte, Ulf Laudi, Martin Andreas Pfeiffer und Wolfgang Pirsich. Unterstützt werden sie in den Ausschüssen von den wählbaren Bürger*innen: Rolf Braun, Bettina Dörge, Dr. Karoline Flüß, Leonie Müller, Marcus Nissen, Dirk Schmarbeck und Jutta Zengeley.
Sie alle sind hoch motiviert, Grünen-Politik in die Gremien einzubringen.
Wir freuen uns, dass wir trotz des enttäuschenden Wahlergebnisses mit einer guten Mischung aus erfahrenen, neuen, älteren und jüngeren Mitgliedern im Gemeinderat sowie in den Ausschüssen vertreten sein werden.
Die Bestätigung ist auf der konstituierenden Gemeinderatssitzung am 21. Juni erfolgt.
Wir bedauern hingegen, dass unsere gewählten Listenkandidat*innen Ute Vierdt-Ziegelitz, Manfred Ziegelitz und Susanne Cordts aus dem enttäuschenden Wahlergebnis für sich die Konsequenz ziehen, ihre Mandate nicht wahrzunehmen und sich aus der Börnsener Gemeindepolitik verabschieden.
Das Foto zeigt: Dr. Karoline Flüß, Birte Drenguis, Dirk Schmarbeck,Leonie Müller, Martin Pfeiffer, Sandra Flöhte, Bettina Dörge, Wolfgang Pirsich, Alfred Drenguis und Rolf Braun. : Nicht dabei sind Ulf Laudi, Marcus Nissen und Jutta Zengeley.

1. Juni 2023
Abschiedserklärung Manfred Ziegelitz

Seit 15 Jahren bin ich Gemeindevertreter in Börnsen, in vielen Ausschüssen tätig und Leiter des Arbeitskreises Sportstättenbau gewesen. Zehn Jahre lang war ich zusätzlich Mitglied im Amtsausschuss des Amtes Hohe Elbgeest, dort Mitglied im Hauptausschuss und zweiter stellvertretender Amtsdirektor.
Diese Zeit ist nunmehr für mich zu Ende. Ich übernehme die Verantwortung für das in meinen Augen schlechte Wahlergebnis bei dieser letzten Gemeinderatswahl, nehme mein Mandat nicht an und gebe es weiter an meinen Nachfolger (die „nächste“ Generation).
Ich bedanke mich bei meiner Fraktion für das Vertrauen in mich, die Unterstützung und kritische Begleitung meiner Arbeit, für das mitunter streitbare, aber immer respektvolle Miteinander im Ringen um gute politische Entscheidungen für die Gemeinde. Es war eine herausfordernde Zeit und eine Zeit, in der ich viele engagierte Menschen kennenlernen und interessante Einblicke gewinnen durfte. Dafür bin ich sehr dankbar.
Ich freue mich nun auf den Perspektivwechsel und werde nunmehr von der Seitenlinie aus den Politikbetrieb sicher weiter verfolgen.
15. Mai 2023
Kommunalwahl 2023
Liebe Wählerinnen und Wähler,
das Ergebnis der Kommunalwahl 2023 konnte den Erfolg der letzten Wahl leider nicht fortsetzen. Die Gründe dafür werden von uns intensiv analysiert. Dazu werden wir Entscheidungen treffen.
Unser Dank gilt zunächst allen Wählerinnen und Wählern, die uns Grünen ihre Stimme gegeben haben, aber letztendlich allen, die zur Wahl gegangen sind. Sie haben durch Ihre Teilnahme an der Wahl nicht nur demokratisches Verständnis bewiesen, sondern auch, dass Ihnen die politische Zukunft unserer Gemeinde Börnsen wichtig ist.
Manfred Ziegelitz
für den Ortsverband Börnsen
Bündnis 90/Die GRÜNEN
10. Mai 2023
Fußweg fertiggestellt
Dies ist eine große Erleichterung und Entschärfung: Schüler*innen und auch Erwachsene, die vom neuen Parkplatz am Sportplatz zur Schule gelangen wollen, können jetzt den neuen Fußweg östlich des Hamfelderredder benutzen:

2. Mai 2023
BLATT GRÜN zur Kommunalwahl 2023
29. März 2023
40 Besucher beim Info-Abend über Balkonkraftwerke
Ein gewaltiger Begriff für ein relativ simples Photovoltaikmodul auf dem eigenen Balkon oder der eigenen Terrasse. Stromkosten sparen und einen direkten Beitrag zur Energiewende leisten sind das Gebot in dieser Zeit.
In Zusammenarbeit mit dem Verein SoliSolsar veranstaltete der OV Börnsen einen Info-Abend über die Funktionsweie, den Einbau und die Förderung von Klein-Solarpaneelen auf Balkonen oder an Hauswänden.
Der Verein „Solisolar“ widmet sich der Aufgabe, den Bürgerinnen und Bürgern in Hamburg und den umliegenden Gemeinden und Kreisen diese Art der Stromerzeugung nahezubringen, zu erklären und Hilfe zur Selbsthilfe zu leisten. Er versteht sich als solidarische Selbstbaugemeinschaft und organisiert kostengünstige Sammelbestellungen.
Genehmigungsfrei sind Anlagen mit maximal zwei Paneelen und bis zu einer Leistung von 600 Watt.


.
15. Januar 2023
Neujahrsempfang
Bürgermeister Klaus Tormählen hat nach zwei Jahren pandemiebedingter Pause wieder zu einem Neujahrsempfang am Sonntag, dem 15. Januar 2023, 11 Uhr, in den Gemeindetreff Waldschule geladen und Viele sind gekommen. Die Tischreihen und Stehtische waren wieder festlich gestaltet und geschmückt.
Die Gäste wurde mit Handschlag vom Bürgermeister begrüßt und gleich von den netten, jungen Servicekräften mit einem Glas Sekt o.Ä. versorgt. Dann hielt man Ausschau: Wo setze ich mich hin? Wo sitzen schon Bekannte?
Als Untermalung wurde vor Beginn der Film über die Entstehung der Sportanlagen im Jahr 2022 gezeigt. Mitglieder des SV Börnsen hatten die Bautätigkeiten mit Foto- und Videoaufnahmen begleitet und daraus eine schöne Präsentation erstellt.
Bürgermeister Klaus Tormählen hat für seine Ansprache das Thema „Ehrenamt“ gewählt. Allen ehrenamtlich Tätigen in Börnsen sprach er seine Anerkennung und seinen Dank aus. Besonders führte er die umfangreichen Herausforderungen an, die heute an die politisch Verantwortlichen auch in einer Kommune gestellt werden. Er appellierte, sich dennoch diesen Aufgaben zu stellen und sich einzubringen.
Das kalte Büffet wurde von unserem Börnsener Unternehmen Fisch-Baier geliefert und von den Gästen „verputzt“. Bei Schnittchen, Kaffee, Sekt und Selter wurde sich lebhaft an den Tischen und der Theke unterhalten.

21. März 2022
Bebauungsplan 22 (neben der Tennishalle)
Seit Bekanntwerden, dass der Tennisclub Börnsen aus Gründen der Unrentabilität die Anzahl seiner Plätze deutlich verringern will, hat der damalige Grundstückseigner in Erwägung gezogen, dort ein kleines Wohngebiet entstehen zu lassen. Das liegt nun schon viele Jahre zurück und der Plan lag lange auf Eis. Die Besitzverhältnisse haben sich seit etwa zwei Jahren geändert, die Erbengemeinschaft hat das Grundstück an einen Investor verkauft. Ihm wurden die von der Erbengemeinschaft entwickelten Bebauungsideen in Form eines Plans übermittelt:

Leider hat der Investor nun einen völlig anderen Entwurf auf der Sitzung des Plan- und Bauausschusses am 28.02.2022 präsentiert. Dieser umfasst 12 Doppelhaushälften und 6 Dreier-Reihenhäuser in zweigeschossiger Bauweise mit Staffelgeschoss:

Als wesentliche Eigenschaft wurde dargestellt, dass das Gebiet als Wohneigentum (WEG) aufgezogen werden soll mit zentralen Anschlüssen für Wasser, Fernwärme und Strom.
Dieser Entwurf wurde anschließend in die Fraktionen zur Beratung gegeben.
Wir GRÜNEN haben uns einstimmig gegen diesen Entwurf ausgesprochen, weil der Haustyp nicht in die Umgebung passt, eine viel zu enge Bebauung vorliegt und die Zahl der Wohneinheiten die Infrastruktur Börnsens immens belasten würde. Gut gelöst ist allerdings der Verzicht auf eine Durchfahrt zur Kirche, die ursprünglich geplant war. Wir wollen einen hohen Wohnwert für die Bürger erreichen und keine Durchfahrtstraße mitten durch das Wohngebiet. Dieser Wunsch ist im Übrigen überparteilich so abgestimmt worden.
Nun ist der Planer wieder dran …